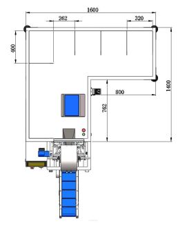
Stół " L" do konfekcji ręcznej ze zgrzewarką. W zależności od potrzeb możemy skonfigurować dowolny wygląd stołu. Stół przygotowany do robienia worków z taśmy foliowej o szerokości maksymalnej 320 mm. Stół posiada przegrody przeznaczone do rozłożenia potrzebnych produktów przeznaczonych do pakowania. Maszyna wymaga tylko zasilania w energię elektryczną oraz sprężone powietrze. Posiada w pełni polskie menu oraz spełnia wymagania CE. Wykonana jest na renomowanych podzespołach światowej klasy producentów.
Parametry produktu
- Zamykanie cyklu pakowania poprzez dodatkowy przycisk na stole lub fotokomórkę (w standardzie przycisk nożny).
- Regulowana długość formowanego worka w zakresie 60 - 180 mm.
- Możliwość modyfikacji oprogramowania w celu tworzenia jednego setu woreczków, które są połączone w całość, ale są rozdzielone zgrzewem, kiedy wymaga tego dostawa lub jest tak napisana instrukcja montażu. Tego typu modyfikacje muszą zostać ustalone na etapie projektowym maszyny.
Dodatkowe opcje doposażenia stołu
- Dodatkowe leje formujące dla innych szerokości taśmy np. 120, 180, 220, 260, 320 lub dowolną podaną przez klienta. W przypadku uformowania worka, jego szerokość wynosi połowę szerokości taśmy, minus 10-15 mm.
- Możliwość zamówienia teflonowanych szczęk zgrzewających pionowych oraz poziomych, w celu użycia folii LPDE.
- Podpórka podtrzymująca ciężki worek, który podczas zasypywania trzyma się na podstawce, potem jest on wypychany na przenośnik taśmowy.
- Przenośnik taśmowy w celu transportowania gotowych woreczków np. do zbiorczych kartonów lub skrzynek.
- Drukarka przeznaczona do nadruku na worku - można tam umieścić różne informacje lub znaki w zależności od potrzeb - w tym kod kreskowy, QR, nr katalogowy czy opis produktu.
- Waga kontrolna sprawdzająca finalnie spakowany worek - w przypadku błędnego spakowania worek taki zostaje odrzucony w celu jego ponownej weryfikacji.
Tego typu stół przyspiesza proces kompletacji i konfekcjonowania produktów. W zależności od potrzeb stół może być obsługiwany przez jedną lub większą ilość osób jednocześnie - pozwala to w sprawny sposób poprawić jakość i szybkość pakowania różnych detali do zbiorczego opakowania. Zamontowana dodatkowo fotokomórka - dodatkowo przyspiesza proces zamykania woreczków. W przypadku dodatkowych pytań prosimy o kontakt z naszą firmą.
Informacje o bezpieczeństwie produktu Informacje o producencie
Zadaj pytanie dotyczące produktu. Nasz zespół z przyjemnością udzieli szczegółowej odpowiedzi na zapytanie.